2
$236,000 Sale
Listed 15 hours ago
12713 119 ST NW
· 0
· 0.0
· 0
· -
Key Facts
Key facts for 12713 119 ST NW
Property Type
Lots/Land
Parking
Garage: No, 0 parking
MLS #
E4462693
Size
-
Basement
-
Listed on
-
Lot size
-
Tax
-
Days on Market
-
Year Built
-
Maintenance Fee
-
Description
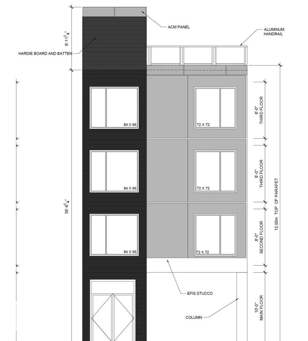
Prime commercial development opportunity in the growing community of Calder! This 30' x 142' vacant lot zoned Neighborhood Commercial (CN) is being sold as a package with completed architectural drawings and civil engineering work for a 4-storey mixed-use building. The proposed design features main ...floor commercial space ideal for retail or office use, with three upper levels comprising 6 two-bedroom and 6 bachelor residential suites, plus a stunning rooftop terrace. Positioned in an up-and-coming area with strong future growth potential, this is a shovel-ready project perfect for developers or investors looking to bring a modern vision to life in northwest Edmonton. (id:10452)
Similar Properties (No results)
Listing courtesy of: RE/MAX River City
This REALTOR.ca listing content is owned and licensed by REALTOR® members of The Canadian Real Estate Association.