72
$687,400 Sale
Listed 8 hours ago
9007 153 ST NW
· 6
· 4.0
· 0
· 1787
Key Facts
Key facts for 9007 153 ST NW
Property Type
House, House
Parking
Garage: Yes, 0 parking
MLS #
E4461381
Size
1787 sqft
Basement
Finished, Full (Finished)
Listed on
-
Lot size
-
Tax
-
Days on Market
-
Year Built
2025
Maintenance Fee
-
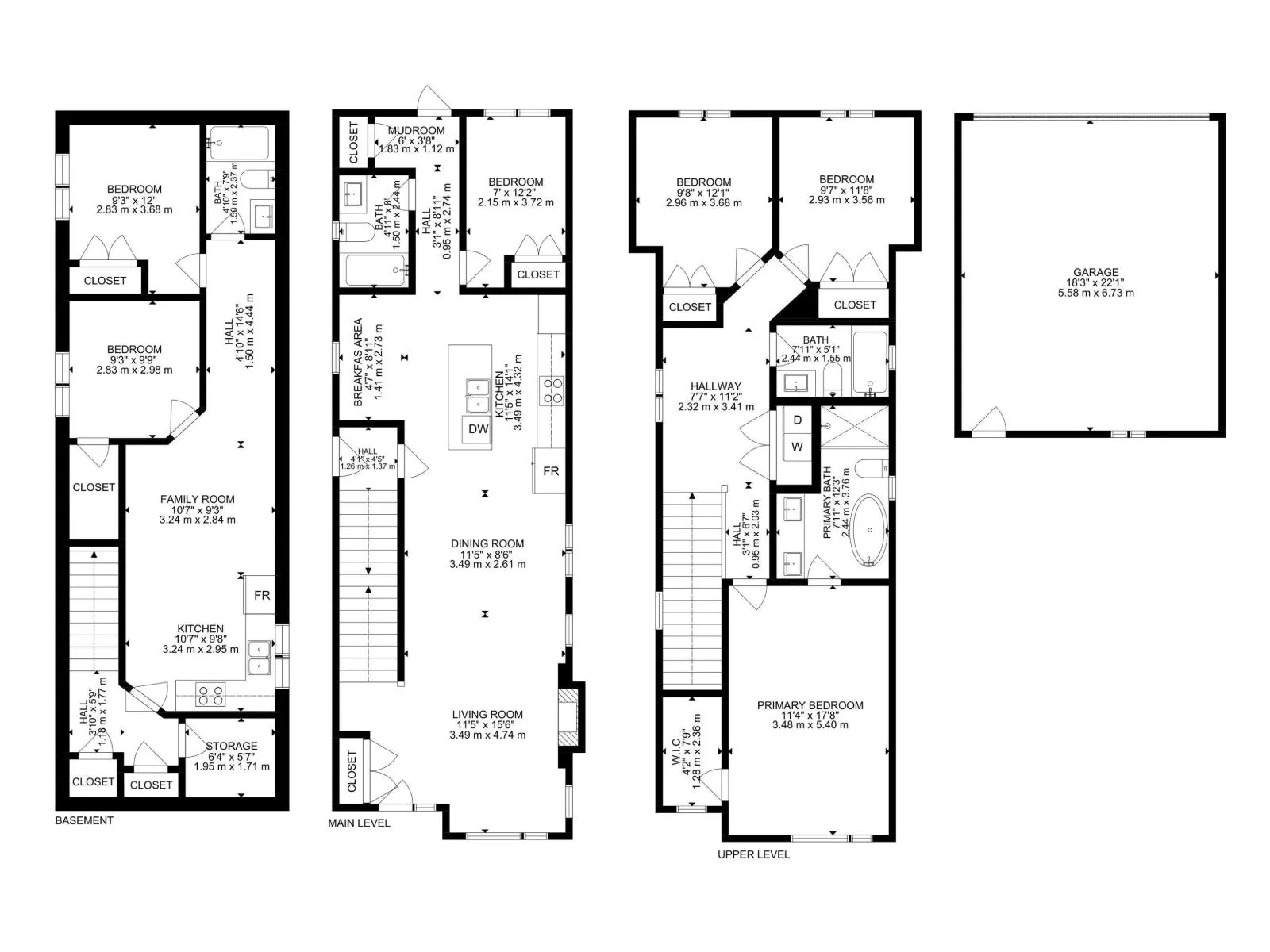
Description
UPGRADED HOME IN THE COMMUNITY OF JASPER PARK! This Brand New home offers 2540 Sq Ft of living space with 6 bedrooms, 4 baths, 9ft ceilings, 8ft doors. Main floor offers vinyl plank flooring, bedroom, Full bath, family room, fireplace. Kitchen with modern high cabinetry, quartz countertops, island. ...Amply Large Mud room, Spacious dinning area with ample sunlight is perfect for get togethers. Walk up stairs to Grand master Suite with 5 piece ensuite/spacious walk in closet, 2 more bedrooms with fully modern common bath, Laundry and bonus area. Fully finished 2 bedroom legal basement suite with separate entrance, 2nd Kitchen, Full bath and Laundry. Your dream home sitting on HUGE lot is next to James Gibbons School, parks, amenities. Includes DETACHED Double Car Garage, TRIPLE PANE WINDOWS, ROUGH GRADE, GAS LINE IN KITCHEN & PATIO. this home offers exceptional value and style. Move-in ready - Don't miss out on this fantastic opportunity! (id:10452)
Similar Properties (No results)
Room Types
Bedroom 2
-
Dimensions 2.15 m x 3.72 m
86.09 sqft
Bedroom 3
-
Dimensions 2.93 m x 3.56 m
112.28 sqft
Bedroom 4
-
Dimensions 2.96 m x 3.68 m
117.25 sqft
Listing courtesy of: Century 21 All Stars Realty Ltd
This REALTOR.ca listing content is owned and licensed by REALTOR® members of The Canadian Real Estate Association.